环境科学与工程专业实验室简介
l 实验室概况
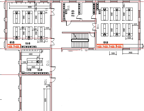
环境科学与工程专业实验室设在土壤楼A座1楼,有3个实验室组成(108,112,118),其面积为220平方米。现任实验员吴岩实验师。

图1 环境科学与工程专业实验室平面布置图
l 实验室课程设置
环境科学与工程实验室主要面对1024核工厂
环境科学、环境工程2个专业的本科生。实验课程主要包括“环境监测实验”、“环境化学实验”、“环境毒理学实验”等,年课程学时量大约在12000人学时。
表1 环境科学与工程实验室主要课程设置情况表
实验项目名称 |
实验课程名称 |
实验课程序号 |
监测方案的制定 |
环境监测实验 |
901040195 |
水样浊度的测定 |
环境监测实验 |
901040195 |
氨氮的测定 |
环境监测实验 |
901040195 |
挥发酚的测定 |
环境监测实验 |
901040195 |
COD的测定 |
环境监测实验 |
901040195 |
溶解氧、BOD的评价 |
环境监测实验 |
901040195 |
高锰酸盐指数的测定 |
环境监测实验 |
901040195 |
大气环境污染物测定 |
环境监测实验 |
901040195 |
土壤As的测定 |
环境监测实验 |
901040195 |
水中铬的测定 |
环境监测实验 |
901040195 |
蔬菜中硝酸盐测定 |
环境监测实验 |
901040195 |
水体富营养化程度评价 |
环境化学实验 |
901040167 |
水中苯系物的挥发速率 |
环境化学实验 |
901040167 |
苯酚的光降解速率常数 |
环境化学实验 |
901040167 |
底泥对苯酚的吸附作用 |
环境化学实验 |
901040167 |
土壤对铜的吸附 |
环境化学实验 |
901040167 |
土壤中砷的测定 |
环境化学实验 |
901040167 |
实验动物的一般操作技术 |
环境毒理学实验 |
901040169 |
经口急性毒性实验 |
环境毒理学实验 |
901040169 |
重金属在鱼体内的分布 |
环境毒理学实验 |
901040169 |
l 实验室建设情况
实验室主要以本专业本科生必修实验课为主,主要仪器有可见分光光度计、紫外分光光度计、振荡器、离心机、恒温培养箱等。教学内容主要围绕专业课程设置展开。
实验室采用多媒体教学模式,实现教师与学生互动式教学,学生实验课中能够每人都动手操作,教学效果显著。实验课在保证基础实验项目稳扎稳打的基础上,增加综合性实验项目,结合科研资源,对学生的创新实践能力培养起到了非常重要的作用。学生的实践能力辅以较合理有效的全方位考核制度去督促,起到了更好的效果,锻炼了本专业学生的实践和创新能力,为将来考研和就业奠定了良好基础。





图2 环境科学与工程实验室环境及主要仪器